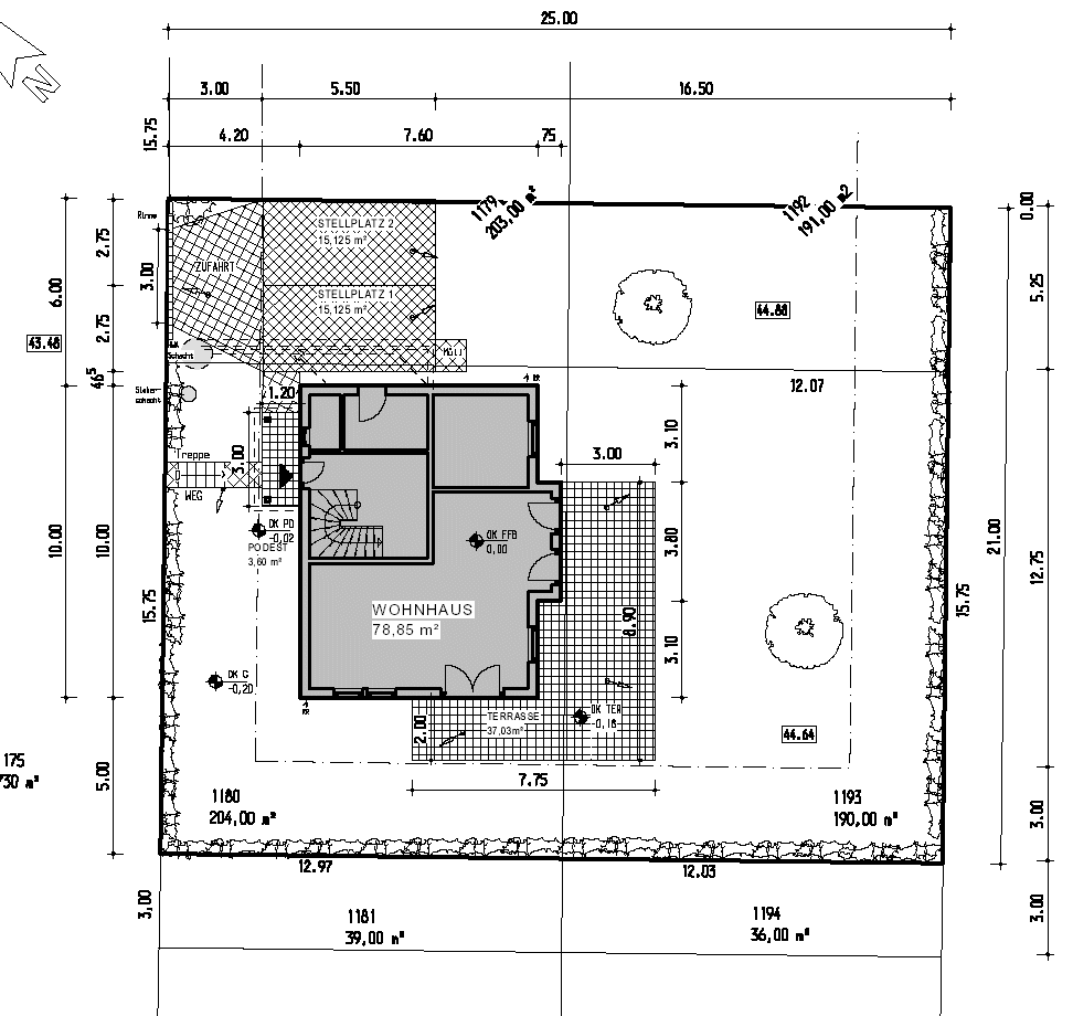
Nach anfänglichen Schwierigkeiten mit dem Grundbuch, ist die Grundstücksfrage jetzt geklärt, 525m2 in 14469 Potsdam Bornim, Werner-Nerlich-Bogen ?

 

- direkt auf dem Hügel und in alle Richtungen freie Sicht

 

 

 

zurück